Estamos en verano y claro, a muchos de nosotros nos encanta ir a la playa pero otra bonita opción para irse de vacaciones es la montaña. En la montaña también lo puedes pasar muy bien y como no, también puedes hacerte tu casa de montaña desde cero.
Desde aquí te queremos mostrar una casa de montaña preciosa y te queremos dar el plano por si tú quieres construirte una igual.

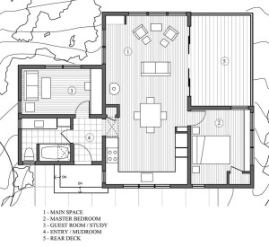
Como puedes ver, este bonito plano cuenta con una hermosa cocina comedor, donde podrás pasar muchos ratos en familia y la verdad es que te encantará pero no es solamente eso. También cuentas con dos habitaciones, una normal y otra de matrimonio. Es una casa de montaña así que si solo cuenta con un cuarto de baño no pasa nada ya que cuenta con un hermoso patio.
Ahora queremos mostrarte la casa por fuera, como puedes ver, aunque sea una casa de montaña esta es muy bonita y luminosa. Es una casa de ensueño y más si lo que te gusta es la naturaleza.
