En la edición de hoy te presentamos planos gratis de una casa de playa que posee una hermosa fachada de casa

Excelente plano de casa de dos plantas, ideal para construirla a la orilla del río o un una playa paradisíaca.
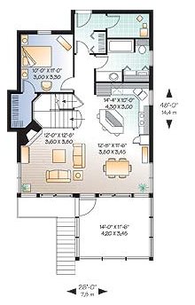
Ver plano planta baja

Ver plano planta alta

Muy lindas las casas y que buenos planos, una que no sabe los entendio.es una tarea para salud ocupacional en riesgos de la construccion. gracias
Muy linda lastima que no se entiende la segunda planta, ¿arriba son 2 dormitorios sin patio ni entrada para la parte de arriba de afuera? 🙂