Al momento de realizar la construcción de una vivienda, sin dudas que un detalle a tener en cuenta es que implemente el uso de tecnología renovable, es el caso de las viviendas que son diseñadas para ayudar a cuidar el medio ambiente y emplean como medio de fabricación la construcción ecológica.

La fachada de la vivienda emplea materiales ecológicos para su construcción, sin dudas que esta vivienda por utilizar un plano de casa ecológica es de las mas bonitas en esta categoría.

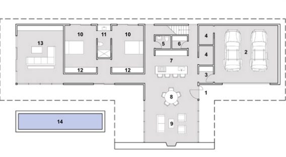
Entre los principales ambientes que se distribuyen en los planos de casas ecológicas se encuentran:
- ingreso
- cochera
- lavandería
- mini galpón
- guarda cosas
- despensa
- cocina
- comedor
- living
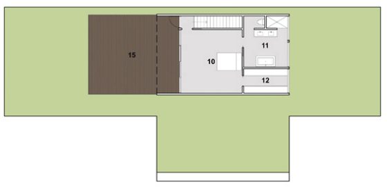
- dormitorio
- baño
- armario
- sala de estar
- piscina o pileta
- roof deck

Sin dudas que este tipo de construcciones de casas emplean energías renovables, entre ellas emplean la iluminación natural proporcionada con los grandes ventanales de la casa.
Otro accesorio a colocar en esta vivienda es un panel solar para utilizar la energía renovable que proporciona el sol, esta es una de las opciones de cuidar el medio ambiente.
Bonito diseńo, me gustaría ver el diseńo de la entrada
Gracias
donde esta la parte del frente
Hola buen día esta muy preciosa la casa pero podría publicar o como se hace para descargar el plano completo de esta casa saludos
Podria enviarme los planos con medidas de esta casa ecologica gracias
Es posible contar con el plano de esta hermosa casa , y el detalle de las instalaciones recomendadas par que sea ecológica. Gracias
Esta hermoza la casa. Para construir una casa asi cuando debe de medir como minimo el terreno, el mio tiene 300mt sera suficiente.
Hola, donde puedo obtener este plano?
Muy agradable. Me podrían pasar el plano completo de esta casa, Gracias!!!
Me podrían mandar el plano completo por favor
Buenas tardes
Me pueden mandar el plano con detalle por favor?
Hola. Me pueden enviar el plano con mad detalles de la casa ecologia por favor.
Quisiera obtener el plano completo de la casa, gracias