En esta oportunidad presentamos un diseño de una vivienda en donde se puede apreciar el diseño 3d de la fachada y también fotos reales de la vivienda donde se llevo acabo el proyecto
En la primer imagen se puede ver un diseño de la casa realizado con un software de computadora, mientras que en la segunda imagen se puede observar el diseño llevado a la realidad, en donde se puede tener una idea mas clara de como quedaría la casa.

El estilo de la fachada se observa muy bien en la segunda imagen, pero hay que tener en cuenta que esta vivienda solo por utilizar otro tipo de pintura y otro tipo de aberturas cambiara mucho su estilo. Es importante ser muy cuidadosos en estos dos puntos ya que son un punto muy importante a la vista.
En la imagen anterior, nuevamente, se puede observar el diseño de la parte de atrás de la casa de dos niveles, pero como en el caso de la fachada de la casa aquí también presentamos una imagen de la constricción real de la casa, en la próxima imagen se pueden ver los detalles de como queda el proyecto de vivienda de 2 pisos llevado acabo.
Como si no fuera poco, en la siguiente fotografiá se muestra nuevamente la fachada de casa de 2 niveles, en este caso la foto fue tomada de otro angulo y se pueden apreciar otros puntos de vista. La vivienda sigue unos lineamientos modernos de construcción y tiene muchas ventanas de vidrio, este es un punto a tener en cuenta si el proyecto se quiere realizar en un barrio donde la seguridad es un punto a tener en cuenta.
Presentamos los planos de la casa de 2 niveles: Plano planta baja:
La planta baja esta compuesta por los siguientes espacios:
- Cochera con espacio amplio
- living cocina comedor
- 1 habitación amplia para los invitados
- deck de madera bajo la galería.
- 1 baño simple
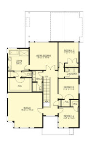
El plano de la planta alta cuenta con los siguientes espacios:
- escalera de acceso al nivel superior
- 4 habitaciones
- un espacio denominado «bonus» donde se puede darle utilidad a gusto, como por ejemplo puede ser una sala de juegos.






gracias por su ayuda con sus ideas
necesito hacer un plano para tarea de la u el terreno es triangular y necesito ubicarle piscina cancha garaje para tres carros el terreno tiene aproximadamente una manzana muchas gracias