Hermosa casa con una arquitectura moderna, el estilo muy bonito no solo se aprecia en su exterior, sino que también es muy notable en su interior.
Foto interior cocina con arquitectura moderna:

Una característica fundamental de esta casa es que, esta desarrollada para el uso hogareño combinado con un espacio reservado para un estudio o oficina.
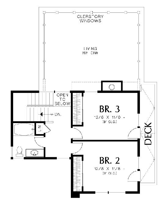
En el plano de casa moderna se puede apreciar el uso de Deck en su exterior, el mismo la hace muy bonita


