La entrega de hoy se trata de una casa que se destaca por su arquitectura moderna, en este caso presentamos imágenes donde se puede ver el diseño exterior de la casa desde distintos y variados ángulos hasta el diseño interior de la vivienda junto con su decoración de interiores empleada para el desarrollo de la misma.

En el caso de la segunda y tercer fotografía de esta vivienda moderna, vemos como las imágenes fueron tomadas de distinto angulo, en este caso se puede observar una toma de la piscina con su piso tipo deck y decoración con sillones de exterior.

En el caso de la tercer fotografía, vemos como se presenta una toma lateral de la vivienda, aquí también es notable el diseño aplicado en los materiales de construcción que se eligieron para construir esta casa moderna.

Al ver la cuarta imagen, se observa una imagen tomada desde una vista del baño, la misma es una foto tomada desde el interior del baño hacia afuera, cabe destacar que este baño tiene un egreso directo al exterior, esto esta diseñado de esta manera debido a que esta casa cuenta con piscina lo que hace que sea cómodo un ingreso directo al baño del exterior.
Entre las características de este baño vemos una puerta de marco de aluminio negro, pese a que se destaca por ser una puerta de vidrio que da unan muy buena visual e ingreso de luz natural.

En el caso de la anterior fotografía, se observa una muy bonita vista de la pileta de esta casa moderna, sin dudas que una casa con estas características, debe poseer una piscina de estas características, principalmente si el lugar geográfico donde se construye la misma es clima cálido, para así aprovechar el mayor periodo de tiempo la misma.
Una buena opción en caso de que el clima no sea cálido es hacer una pileta climatizada lo que hará que se pueda aprovechar los placeres que esta otorga durante todo el año.

El equipamiento de la cocina moderna sin dudas que cuenta con un diseño elegante y muy bonito, en este caso vemos que la cocina tiene un desayunador en isla, en este caso vemos un anafe en la isla de la cocina, en el otro extremo de la mesada en isla vemos la pileta de la cocina.

Una casa moderna debe contar con una escalera moderna, por eso vemos este diseño de escaleras modernas donde la misma se encuentra equipada con barandas en ambos costados, esto es así debido a que la escalera no se encuentra separada de la pared, pues vemos un hermoso ventanal y una puerta con mucho vidrio permitiendo generar un ahorro energético y beneficiándose con la calidez de la iluminación natural. También se destacan las aberturas de aluminio negro, algo muy bonito y distintivo en cualquier tipo de construcción.

En el desarrollo de esta vivienda de arquitectura moderna, vemos como se emplearon materiales muy modernos, lo que genera naturalmente una vista distintiva de una construcción «común».

Sin dudas que uno de los lugares mas cálidos de la vivienda debe ser el dormitorio de la misma, si tomamos como ejemplo la fotografía de la habitación matrimonial vemos dos mesas ratonas tipo bancos, ideales para utilizarlas al momento de levantarse y vestirse, el diseño del interior del dormitorio matrimonial sigue lineamientos del estilo minimista.

Cabe destacar que un buen comedor y una buena cocina de estas características debe tener algo distintivo, en este caso se ve un telescopio apuntando al océano, algo ideal a tener en casas que ofrecen este tipo de vistas, no solo es un elemento decorativo, sino que también es útil para despejarse y relajarse observando el bello paisaje que tiene esta vivienda.

Buenos sillones son un plan ideal para equipar cualquier tipo de vivienda, en este caso los sofás empleados son blancos, de un diseño simple pero muy cómodos para disfrutar de momentos placenteros de descanso y hobby.

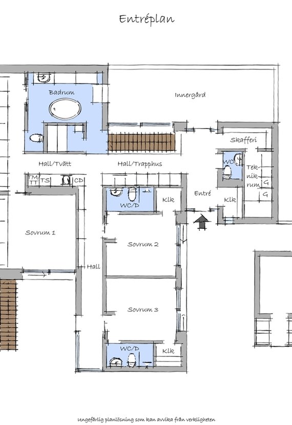
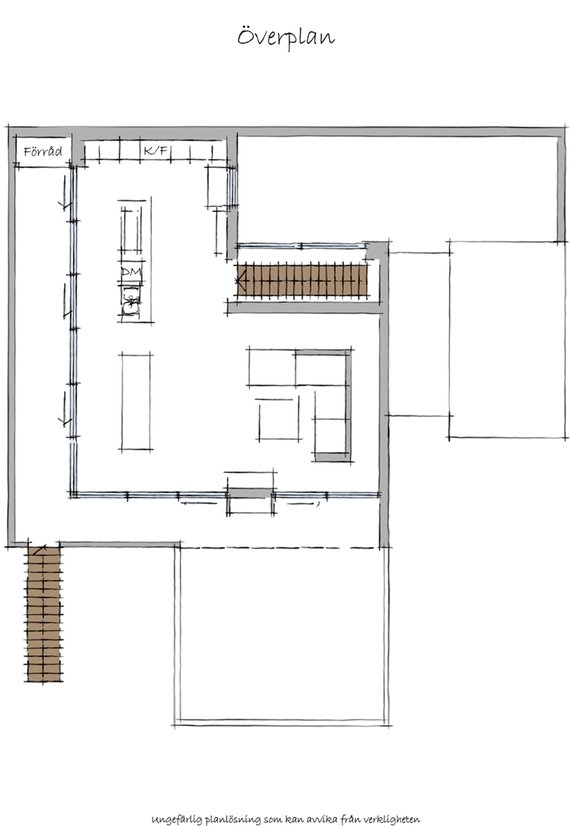
En los presentes planos de esta vivienda moderna que sigue lineamientos arquitectónicos de la actualidad, vemos como se tomaron las distribuciones de la vivienda, como es habitual, en la planta baja se desarrollaron los lugares que mas se visitan diariamente en una casa.

En el segundo piso o planta alta se encuentran los ambientes destinados al descanso, tanto como habitaciones como lugares de recreación, es habitual ver este tipo de distribucion.
en cuantos metros cuadrados debe ser construida esta casa?
Me gustaría ver Los planos de esta casa me a gustado y me gustaría saber SI se puede hacer en un terreno de 10×20 oh de 20×20 esta increíble esta casa
Si me encanta. Podrían enviarme los planos
Hola, linda casa, quisiera tener los planos arquitectónicos completos
Linda casa, podrian ser compartidos los planos?. Saludos.
Que casa para mas hermosa me podrian enviar los planos por fa
Me podrías decir las dimensiones de este plano ??
Necesito favor me envien plano de casa ladrillo fiscal estucada 80 M2
ENVIENME LOS PLANOS POR FAVOR BELLA CASA
Estudio arquitectura, me gustaria hacer mi proyecto de esta casa, alguien me podria dar los planos por favor
Me pueden enviar los planos ? Está realizada con contenedores ?